| Šifra: | 005946 |
|---|---|
| Status: | Oddaja |
| Regija: | Podravska |
| Mesto | Maribor |
| Lokacija: | Studenci |
| Vrsta: | Poslovni prostor |
| Tip: | Delavnica |
| Zgrajeno: | 1935 |
| Obnovljeno: | 2000 |
| Velikost: | 259 m2 |
| Zemljišče: | 140 m2 |
| Vseljivo: | Enota je pripravljena |
| Število nadstropij: | 1 |
Oddamo del sodobne poslovne stavbe – enota B – proizvodni oz. produkcijski, pisarniški in skladiščni del v pritličju, s pripadajočimi parkirnimi prostori.
Stavba se nahaja v Mariboru, v predelu Studenci, z dostopom iz Ulice tabornikov. Gre za izjemno priložnost za podjetja, ki iščejo ugledne prostore za izvajanje svoje dejavnosti.
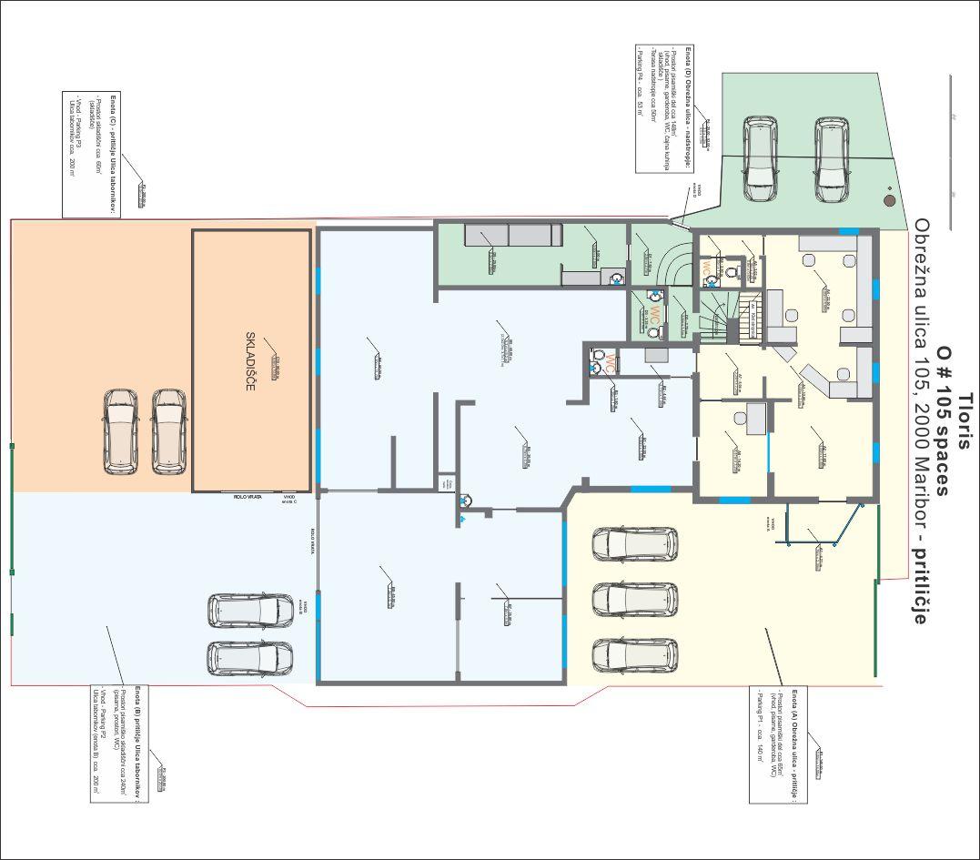
Skupna površina prostorov znaša cca. 250 m2, od tega dva pisarniška oz administracijska prostora v izmeri 22 in 15 m2, ostalo so proizvodni, delavniški oz. skladiščni prostori in sanitarije.
Tloris si lahko ogledate med priloženimi fotografijami. Enota B je označena s svetlo modro barvo.
Pred vhodom je na voljo parkirišče v izmeri cca 200 m2, kjer lahko parkira vsaj 5 avtomobilov. Vhod je ločen in namenjen samo tej poslovni enoti.
Celoten objekt je opremljen z računalniško mrežno infrastrukturo. Ogrevanje je urejeno z mestnim plinom in plinsko pečjo. Prostori so delno opremljeni s pisarniškim pohištvom in omarami.
V produkcijskem delu je nameščena napeljava s pripravnimi grupami za stisnjen zrak.Prostori so ogrevani in centralno prezračevani z rekuperacijo in v administrativnem delu klimatizirani.
- Obratovalni stroški: predvidoma do 3 Eur/m2.
Obračun se opravi po dejanskih stroških in porabi. V te stroške so zajeti poraba elektrike, ogrevanje, voda, kanalščina, osnovno zavarovanje, internet, plačilo NUSZ, - najemnik si sam zagotovi čiščenje (notranjost in zunanjost najetih prostorov in površin), varovanje, odvoz smeti, pregled naprav za varstvo pred požarom,
- pred najemom se vplača varščina v višini 3 mesečnih neto najemnin (5.100 Eur),
- najemnik lahko tudi sam sklene pogodbo s ponudnikom telekomunikacijskih storitev,
- hišni ljubljenčki niso dovoljeni,
- kajenje v notranjih prostorih ni dovoljeno,
- pogoj najemodajalca je, da mu najemnik povrne del stroškov nepremičninske družbe v znesku 1.037,00 Eur z ddv – jem.
Možen je tudi najem celotne stavbe v izmeri cca. 590 m2 ali drugih delov stavbe.
Del stavbe A zajema pisarniške prostore v pritličju s sanitarijami, v izmeri cca. 81 m2, del stavbe C zajema zunanje montažno skladišče v izmeri 60 m2, del stavbe D zajema pisarniške prostore v prvem nadstropju s pripadajočimi sanitarijami in teraso v izmeri 123 m2 + terasa 50 m2. K tej enoti pripada še opremljena čajna kuhinja in shramba v pritličju. Vse štiri enote imajo ločene vhode in zagotovljene parkirne prostore.
Del stavbe A zajema pisarniške prostore v pritličju s sanitarijami, v izmeri cca. 81 m2, del stavbe C zajema zunanje montažno skladišče v izmeri 60 m2, del stavbe D zajema pisarniške prostore v prvem nadstropju s pripadajočimi sanitarijami in teraso v izmeri 123 m2 + terasa 50 m2. K tej enoti pripada še opremljena čajna kuhinja in shramba v pritličju. Vse štiri enote imajo ločene vhode in zagotovljene parkirne prostore.
Nepremičnina se oddaja v dolgoročni najem.
Razmišljate o prodaji svoje nepremičnine na območju Maribora ali širše Štajerske?
V družbi INSA nepremičnine vam z več kot 35-letno tradicijo, strokovnim znanjem in obsežno bazo interesentov zagotavljamo varno in učinkovito izpeljavo prodaje.
V družbi INSA nepremičnine vam z več kot 35-letno tradicijo, strokovnim znanjem in obsežno bazo interesentov zagotavljamo varno in učinkovito izpeljavo prodaje.
Vabimo vas, da nas kontaktirate za zaupni pogovor in predstavitev možnosti sodelovanja.
INSA nepremičnine – z vami od leta 1991.





