| Šifra: | 005948 |
|---|---|
| Status: | Oddaja |
| Regija: | Podravska |
| Mesto | Maribor |
| Lokacija: | Studenci |
| Vrsta: | Poslovni prostor |
| Tip: | Pisarna |
| Zgrajeno: | 1935 |
| Obnovljeno: | 2000 |
| Velikost: | 123 m2 |
| Vseljivo: | Enota je pripravljena |
| Število nadstropij: | 1 |
| Nadstropje: | 1 |
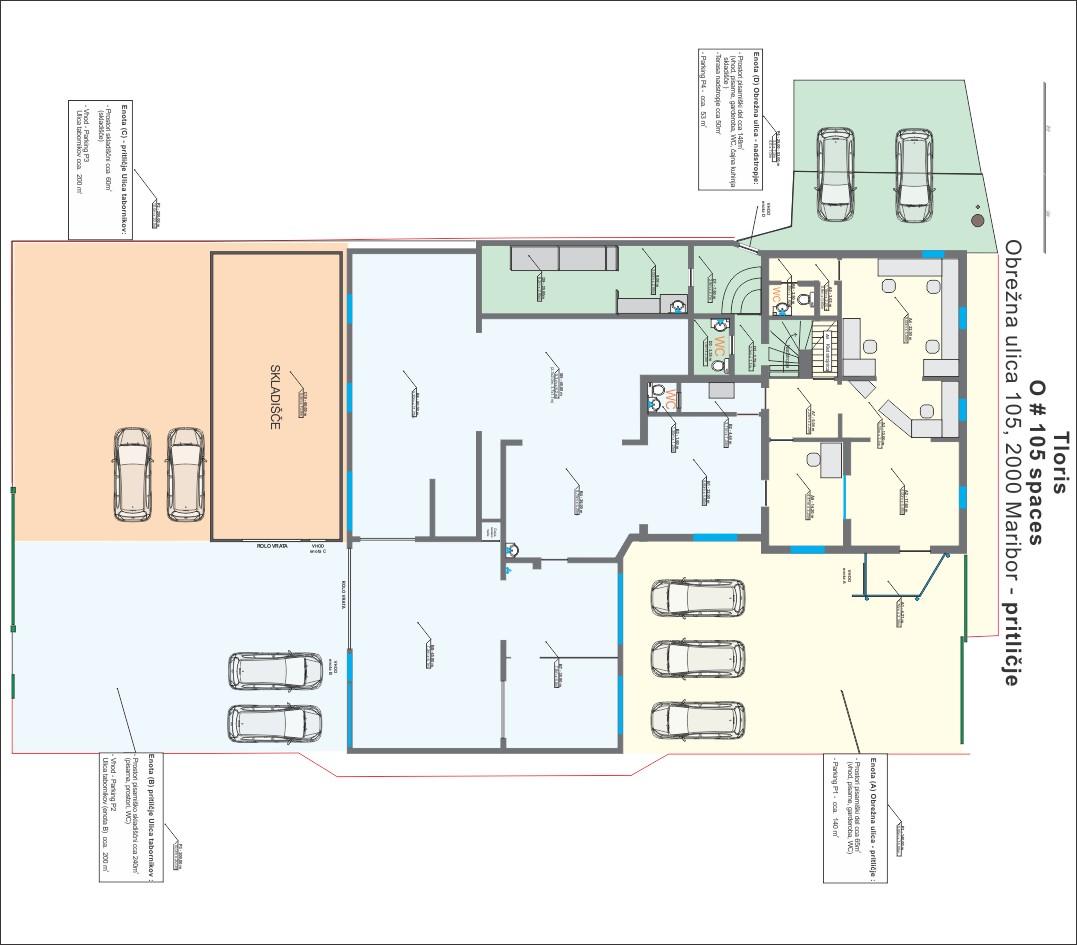
Oddamo del sodobne poslovne stavbe – enota D – pisarne v prvem nadstropju s teraso, čajno kuhinjo in shrambo v pritličju in s pripadajočimi parkirnimi prostori.
Stavba se nahaja v Mariboru, v predelu Studenci, z dostopom iz Obrežne ulice. Gre za izjemno priložnost za podjetja, ki iščejo ugledne prostore za izvajanje svoje dejavnosti.
Skupna površina prostorov znaša 123 m2 in dodatno 50 m2 terase. V nadstropju se nahajajo tri večje pisarne (25, 28 in 41 m2). Ena od pisarn je lahko tudi sejna soba. Iz sejne sobe je izhod na večjo teraso, kjer lahko zaposleni preživijo odmor za kavo ali malico. Poleg treh pisarn je še manjši prostor, ki lahko služi kot prostor za hrambo dokumentacije ali kot manjša pisarna (8 m2). K enoti pripadajo še pomožni prostori: vetrolov, hodnik, sanitarije, predprostor. K tej enoti pripadata še opremljena čajna kuhinja v pritličju in manjši prostor za shrambo v izmeri cca 30 m2.
Tloris si lahko ogledate med priloženimi fotografijami. Enota D je prikazana z zeleno barvo.
Tloris si lahko ogledate med priloženimi fotografijami. Enota D je prikazana z zeleno barvo.
Pred vhodom je na voljo parkirišče, kjer lahko parkira največ 5 avtomobilov. Vhod je ločen in namenjen samo tej poslovni enoti. Po potrebi se lahko zagotovijo še dodatni parkirni prostori.
Prostori so opremljeni s pisarniškim pohištvom. Celoten objekt je opremljen z računalniško mrežno infrastrukturo. Prostori so ogrevani in klimatizirani.
Ogrevanje je urejeno s plinsko pečjo in mestnim plinom.
- Bruto mesečna najemnina znaša 1548,39 Eur,
- obratovalni stroški: do 3 eur/m2. Obračun se opravi po dejanskih stroških in porabi. V te stroške so zajeti poraba elektrike, plina za ogrevanje, vode, kanalščina, osnovno zavarovanje, internet, plačilo NUSZ,
- najemnik si sam zagotovi čiščenje ( notranjost in zunanjost najetih prostorov in površin), varovanje, odvoz smeti, pregled naprav za varstvo pred požarom,
- pred najemom se vplača varščina v višini 3 mesečnih neto najemnin (3.600,00 Eur),
- najemnik lahko sam sklene pogodbo s ponudnikom telekomunikacijskih storitev,
- hišni ljubljenčki niso dovoljeni,
- kajenje v notranjih prostorih ni dovoljeno,
- pogoj najemodajalca je, da mu najemnik povrne del stroškov nepremičninske družbe v znesku 732,00 Eur z ddv – jem.
Možen je tudi najem celotne stavbe v izmeri cca. 590 m2 ali drugih delov stavbe. Del stavbe A zajema pisarniške prostore s sanitarijami v pritličju v izmeri cca. 81 m2, del stavbe B zajema proizvodno-produkcijsko-skladiščni del s pisarnami in sanitarijami v pritličju v izmeri cca. 250 m2, del stavbe C zajema zunanje montažno skladišče v izmeri 60 m2.
Nepremičnina se oddaja v dolgoročni najem.
Razmišljate o prodaji svoje nepremičnine na območju Maribora ali širše Štajerske?
V družbi INSA nepremičnine vam z več kot 35-letno tradicijo, strokovnim znanjem in obsežno bazo interesentov zagotavljamo varno in učinkovito izpeljavo prodaje.
Razmišljate o prodaji svoje nepremičnine na območju Maribora ali širše Štajerske?
V družbi INSA nepremičnine vam z več kot 35-letno tradicijo, strokovnim znanjem in obsežno bazo interesentov zagotavljamo varno in učinkovito izpeljavo prodaje.
Vabimo vas, da nas kontaktirate za zaupni pogovor in predstavitev možnosti sodelovanja.
INSA nepremičnine – z vami od leta 1991.





