| Šifra: | 005944 |
|---|---|
| Status: | Oddaja |
| Regija: | Podravska |
| Mesto | Maribor |
| Lokacija: | Studenci |
| Vrsta: | Poslovni prostor |
| Tip: | Poslovna stavba |
| Zgrajeno: | 1935 |
| Obnovljeno: | 2000 - Streha, fasada |
| Velikost: | 587 m2 |
| Zemljišče: | 935 m2 |
| Vseljivo: | takoj |
Oddamo sodobno poslovno stavbo, ki zajema pisarne, skladiščni in proizvodni prostor ter parkirne površine.
Gre za izjemno priložnost za podjetja, ki iščejo ugledne prostore za izvajanje svoje dejavnosti.
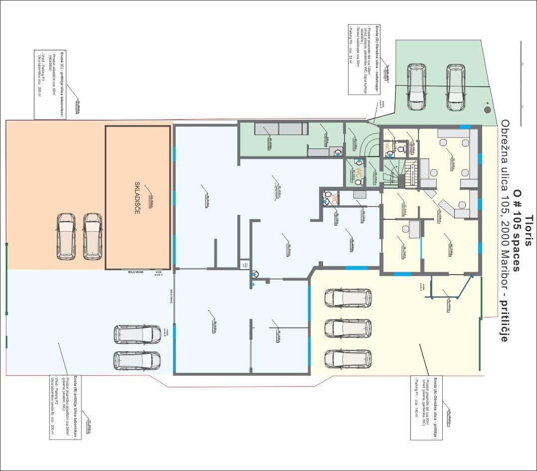
Stavba se nahaja se v Mariboru, v predelu Studenci, z dostopom iz dveh strani (ulic) in sicer iz Obrežne ulice in Ulice Tabornikov.
Skupna površina stavbe znaša cca. 590 m2, od tega je ločeno montažno skladišče v izmeri 60 m2. Pripadajoče zemljišče v izmeri 935 m2 zajema zemljišče pod stavbo in okoli nje, kjer so parkirne in manipulacijske površine.
Prostori se nahajajo v dveh etažah, kjer so v pritlični etaži pisarne, sanitarije, čajna kuhinja ter večji proizvodni, produkcijski in skladiščni del. V zgornji etaži se nahajajo pisarniški prostori, iz katerih je izhod na 50 m2 veliko teraso . Razporeditev prostorov je razvidna iz priloženih fotografij.
Stavba ima dva ločena vhoda, iz strani Ulice Tabornikov je tudi dovoz za večja, tovorna vozila. Vsak vhod ima možnost namestitve naprave za kontrolo registracije delovnega časa.
Objekt je opremljen s pisarniškim pohištvom ter z video in varnostnim nadzorom, tako zunaj, kot znotraj. Celoten objekt je opremljen z računalniško mrežno infrastrukturo.
V produkcijskem delu je nameščena napeljava s pripravnimi grupami za stisnjen zrak.
Prostori so ogrevani in klimatizirani. V objektu je tudi opremljena čajna kuhinja z vso opremo.
Ogrevanje : mestni plin in plinska peč.
Parkiranje: parkirna mesta na obeh straneh stavbe.
Stavba je primerna za podjetja, ki iščejo zaokroženo celoto urejenih in vzdrževanih prostorov za svoje obratovanje in zaposlene. Za podjetja, ki se ukvarjajo s trgovsko, storitveno ali proizvodno dejavnostjo.
- Bruto mesečna najemnina znaša 5.032,00 Eur,
- obratovalni stroški: predvidoma do 3 eur/m2. Obračun se opravi po dejanskih stroških in porabi. V te stroške so zajeti poraba elektrike, plina za ogrevanje, vode, kanalščina, osnovno zavarovanje, internet, plačilo NUSZ.
- najemnik si sam zagotovi čiščenje (notranjost in zunanjost najetih prostorov in površin), varovanje, odvoz smeti, pregled naprav za varstvo pred požarom,
- pred najemom se vplača varščina v višini 3 mesečnih neto najemnin (11.700,00 Eur),
- najemnik lahko sam sklene pogodbo s ponudnikom telekomunikacijskih storitev,
- hišni ljubljenčki niso dovoljeni,
- kajenje v notranjih prostorih ni dovoljeno,
- pogoj najemodajalca je, da mu najemnik povrne del stroškov nepremičninske družbe v znesku eur 2.379,00 Eur z ddv-jem.
Možen je tudi najem samo dela stavbe.
Del stavbe A zajema pisarniške prostore v pritličju s sanitarijami, v izmeri cca. 81 m2, del stavbe B zajema proizvodno-produkcijsko-skladiščni del s pisarnami in sanitarijami v pritličju v izmeri cca. 250 m2, del stavbe C zajema zunanje montažno skladišče v izmeri 60 m2, del stavbe D zajema pisarniške prostore v prvem nadstropju s pripadajočimi sanitarijami in teraso v izmeri 123 m2 + terasa 50 m2. K temu delu pripadata tudi opremljena čajna kuhinja v pritličju in shramba. Vse štiri enote imajo ločene vhode in zagotovljene parkirne prostore.
Nepremičnina se oddaja v dolgoročni najem.
Razmišljate o prodaji svoje nepremičnine na območju Maribora ali širše Štajerske?
V družbi INSA nepremičnine vam z več kot 35-letno tradicijo, strokovnim znanjem in obsežno bazo interesentov zagotavljamo varno in učinkovito izpeljavo prodaje.
Del stavbe A zajema pisarniške prostore v pritličju s sanitarijami, v izmeri cca. 81 m2, del stavbe B zajema proizvodno-produkcijsko-skladiščni del s pisarnami in sanitarijami v pritličju v izmeri cca. 250 m2, del stavbe C zajema zunanje montažno skladišče v izmeri 60 m2, del stavbe D zajema pisarniške prostore v prvem nadstropju s pripadajočimi sanitarijami in teraso v izmeri 123 m2 + terasa 50 m2. K temu delu pripadata tudi opremljena čajna kuhinja v pritličju in shramba. Vse štiri enote imajo ločene vhode in zagotovljene parkirne prostore.
Nepremičnina se oddaja v dolgoročni najem.
Razmišljate o prodaji svoje nepremičnine na območju Maribora ali širše Štajerske?
V družbi INSA nepremičnine vam z več kot 35-letno tradicijo, strokovnim znanjem in obsežno bazo interesentov zagotavljamo varno in učinkovito izpeljavo prodaje.
Vabimo vas, da nas kontaktirate za zaupni pogovor in predstavitev možnosti sodelovanja.
INSA nepremičnine – z vami od leta 1991.





